The Koochiching County Jail is a correctional facility located in the northern part of Minnesota, serving the residents of Koochiching County. This jail plays a crucial role in maintaining law and order within the region, housing inmates awaiting trial or serving sentences for various offenses. The facility is designed to provide secure and humane incarceration, ensuring the safety of both inmates and staff while also offering opportunities for rehabilitation and reintegration into society.
The jail's operations are governed by strict regulations and standards set by the Minnesota Department of Corrections and the Federal Bureau of Prisons. It is a key component of the county's criminal justice system, working in conjunction with local law enforcement agencies to ensure public safety and justice.
In addition to incarceration, the Koochiching County Jail offers various programs and services aimed at addressing the underlying causes of criminal behavior and reducing recidivism. These may include educational and vocational training, substance abuse counseling, and mental health support, all designed to empower inmates with the skills and resources needed to lead productive lives upon release.
The jail's location in the remote northern region of Minnesota presents unique challenges and opportunities. It serves as a reminder of the diverse and often underserved communities within the state, highlighting the importance of accessible and effective correctional services.
Koochiching County Jail, MN Inmate Roster
The interior of a dimly lit jail cell. Bars cover the windows, and a single, small table sits in the corner. A lone prisoner sits on a bed, their silhouette visible against the light, creating a sense of confinement and solitude.
Koochiching County Jail: Jail Roster, Visitation, Send Money or Mail ...
An old, wooden sign hangs on the jail's facade, reading 'Koochiching County Jail'. The sign is faded but still legible, adding a touch of historical charm to the scene. The image evokes a sense of nostalgia and the passage of time.
Koochiching County Jail Roster Guide
A group of law enforcement officers stand outside the jail, their badges and uniforms glinting in the sunlight. The scene conveys authority and the presence of justice, with the jail as the backdrop.
Koochiching Jail Inmate Lookup
A close-up of an old, rusted keyhole on the jail's door. The keyhole is surrounded by intricate patterns, suggesting a rich history. This image hints at the secrets and mysteries within the jail.
Koochiching Jail Inmate Lookup
A wide-angle view of the jail from the front, showcasing its symmetrical architecture. The building is surrounded by a lush green lawn, creating a sense of tranquility. The image is ideal for a historical or architectural brochure.
From Mugshots To Court Dates: The Inside Scoop On The Koochiching ...
A bird's-eye view of the jail, showing its isolated location in the middle of a vast, open landscape. The jail stands out against the natural surroundings, emphasizing its remoteness.
New Jail and Law Enforcement Center | Koochiching County, MN
A night scene with the jail illuminated by a full moon, casting long shadows. The moonlight adds an eerie atmosphere, making the jail appear even more mysterious and foreboding.
New Jail and Law Enforcement Center | Koochiching County, MN
A prisoner's hand reaches through a small opening in the jail's door, holding a small, handwritten note. The image conveys a sense of hope and desperation, with the jail as the backdrop.
Koochiching County Jail Roster Lookup, MN, Inmate Search
A detailed close-up of an old, leather-bound book on a shelf inside the jail. The book's title, 'Laws of Koochiching County', is visible, adding a touch of historical context.
New Jail and Law Enforcement Center | Koochiching County, MN
A group of prisoners huddled together in a small, dimly lit room inside the jail. The image conveys a sense of community and shared experience, with the jail as the backdrop.
"Koochiching County Court House & Jail."
A solitary prisoner walks down a narrow hallway inside the jail, their footsteps echoing. The image evokes a sense of loneliness and the weight of confinement.
New Jail and Law Enforcement Center | Koochiching County, MN
A wide-angle view of the jail's interior, showing a spacious lobby with a high ceiling. The scene is bright and inviting, contrasting with the typical perception of a jail.
Koochiching County Jail Roster Explained: Inside the Bars
A close-up of a prisoner's face, their eyes filled with determination. The image conveys a sense of resilience and the human spirit, with the jail as the backdrop.
Koochiching County Jail Inmates | Jail Roster Search
A night scene with the jail's lights shining brightly, illuminating the surrounding area. The contrast between the dark night and the bright jail creates a striking visual.
Koochiching County Jail Roster: Inmate Search, Mugshots, and Visitation ...
A prisoner stands in front of a small, one-way mirror, speaking to a lawyer through a glass window. The image conveys a sense of legal proceedings and the complexities of the justice system.
Koochiching County Jail Roster Pdf - Fill Online, Printable, Fillable ...
A detailed view of the jail's intricate iron bars, close-up. The bars are ornate and detailed, suggesting a rich history and craftsmanship.
Accessing the Koochiching County Jail Roster: A Guide
A wide-angle view of the jail from the back, showcasing its garden and outdoor area. The scene is peaceful and serene, offering a glimpse of nature within the confines of the jail.
Koochiching County Jail Roster: Find Inmate Information Fast!
A prisoner's hand reaches out through a small opening in the jail's door, holding a small, green plant. The image conveys a sense of life and growth within the confines of the jail.
Koochiching County Jail Roster: Find Inmate Information Fast!
A close-up of an old, wooden sign on the jail's wall, reading 'No Visitors Allowed'. The sign is faded but still visible, adding a touch of authority and restriction.
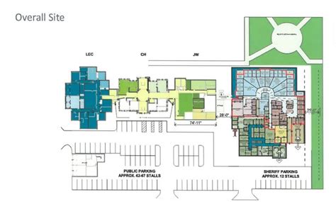
County Board get first look at new jail drawings - Acadia Broadcasting
A prisoner sits on a bed, writing in a small, leather-bound journal. The image conveys a sense of introspection and personal reflection, with the jail as the backdrop.
Koochiching County Jail Roster: The Complete List. - Truth or Fiction
A wide-angle view of the jail's exterior, showing a group of tourists taking photos. The scene adds a touch of humor and irony, as the jail becomes a tourist attraction.
Koochiching County Jail Roster: A Complete Guide to Its Meaning ...
A close-up of a prisoner's hand holding a small, metal key. The key is old and rusted, suggesting a long history of confinement.
Inmate escapes from Koochiching County Jail - Duluth News Tribune ...
A detailed view of the jail's intricate door handle, close-up. The handle is ornate and detailed, adding a sense of craftsmanship and history.
ICS
A wide-angle view of the jail's interior, showing a spacious dining area with tables and chairs. The scene is bright and inviting, contrasting with the typical perception of a jail.
Koochiching County Jail Roster PDF | Latest Inmate List
A prisoner stands in front of a small, one-way mirror, speaking to a loved one through a glass window. The image conveys a sense of connection and emotional support within the jail.
Koochiching County Jail Roster PDF | Latest Inmate List
A close-up of an old, wooden table in the jail's common room. The table is covered with various items, suggesting a sense of community and shared resources.
Koochiching County Jail Roster PDF | Latest Inmate List
A wide-angle view of the jail's exterior, showing a group of children playing in the nearby park. The scene adds a touch of innocence and contrast to the jail's setting.
Koochiching County Jail Roster PDF | Latest Inmate List
A detailed look at koochiching county jail
.
Koochiching County Jail Roster PDF | Latest Inmate List
A detailed look at koochiching county jail
.
Koochiching County Jail, MN: Inmate Search, Jail Rules & Contact Info
A detailed look at koochiching county jail
.
Koochiching County (MN) - The RadioReference Wiki
A detailed look at koochiching county jail
.
Koochiching County Jail Roster PDF | Latest Inmate List
A detailed look at koochiching county jail
.
Koochiching County Sheriff's Office | International Falls MN
A detailed look at koochiching county jail
.
Koochiching County Jail Roster PDF | Latest Inmate List
A detailed look at koochiching county jail
.
Koochiching County Sheriff's Office | International Falls MN
A detailed look at koochiching county jail
.
Koochiching County Jail Groundbreaking 070924 - YouTube
A detailed look at koochiching county jail
.
ICS
A detailed look at koochiching county jail
.
Koochiching County Jail Roster Lookup, MN, Inmate Search
A detailed look at koochiching county jail
.
County Board get first look at new jail drawings - Acadia Broadcasting
A detailed look at koochiching county jail
.
County Board get first look at new jail drawings - Acadia Broadcasting
A detailed look at koochiching county jail
.
Koochiching County... - Koochiching County Sheriff's Office
A detailed look at koochiching county jail
.
Koochiching County Jail: The Roster's Biggest Mystery Solved? - Truth ...
A detailed look at koochiching county jail
.
ICS
A detailed look at koochiching county jail
.
Koochiching County jail suicide highlights lapses in care of mentally ill
A detailed look at koochiching county jail
.