Welcome to the informative page about the Waukesha County Jail. This facility plays a crucial role in the criminal justice system of Waukesha County, Wisconsin. It serves as a place of detention for individuals awaiting trial, those who have been convicted, and those who are being held in custody while their cases are ongoing. The jail is a vital component in maintaining public safety and ensuring the smooth operation of the legal process.
The Waukesha County Jail is designed to accommodate a variety of inmates, including those who are awaiting trial and those who have been sentenced. It provides a secure environment for the detention of individuals who have been charged with crimes, ensuring their safety and the safety of the community. The jail also offers a range of services and programs aimed at supporting inmates during their incarceration, such as educational opportunities, counseling, and rehabilitation initiatives.
One of the key benefits of the Waukesha County Jail is its contribution to the efficient administration of justice. By providing a centralized location for detention, it streamlines the legal process, ensuring that inmates are processed, their cases are managed, and their sentences are served in a structured manner. This efficiency is crucial for maintaining the integrity of the criminal justice system and for the timely resolution of legal matters.
WAUKESHA COUNTY JAIL INMATE LIST - WAUKESHA COUNTY JAIL | WAUKESHA ...
A solitary inmate sits in a small, windowless cell, their back against the bare brick wall. The mood is one of loneliness and despair, with the stark, cold lighting emphasizing the isolation. Could be used in a psychological thriller or a story about prison life.
Waukesha County Jail, WI Visitation Schedule
An aerial view of the county jail, surrounded by a chain-link fence and barbed wire. The mood is one of isolation and security, with the harsh, industrial setting suggesting a place of punishment. Useful for a crime scene investigation or a story about prison escape.
Waukesha County Jail Visitation 2026 - Countyjailvisit.com
A close-up of an inmate's hand, cuffed and restrained, with a barbed wire fence in the background. The mood is tense and threatening, with the barbed wire adding a sense of danger. Perfect for a crime scene or a story about prison security.
Image
A group of inmates, their faces obscured by masks, huddled in a common area, with a metal table and chairs in the center. The mood is one of camaraderie and defiance, with the masked faces suggesting a sense of secrecy. Could be used in a prison rebellion or a story about inmate rights.
How to contact an inmate at Waukesha County Jail - Inmate Help
A solitary inmate walks down a narrow, fluorescent-lit corridor, their footsteps echoing. The mood is one of loneliness and confinement, with the stark, industrial setting emphasizing the isolation. Ideal for a psychological thriller or a story about prison life.
Image
A close-up of an inmate's face, their eyes darting around anxiously, with a barbed wire fence in the background. The mood is one of fear and uncertainty, with the barbed wire adding a sense of danger. Perfect for a crime scene or a story about prison security.
Waukesha County WI Jail Inmate Search, Visitation and Contact ...
A group of inmates, their faces visible, standing in a line, with a metal gate and barbed wire fence in the background. The mood is one of discipline and order, with the harsh, industrial setting suggesting a place of punishment. Useful for a crime scene investigation or a story about prison life.
Waukesha County Jail, WI Visitation Schedule
A solitary inmate sits on a metal chair, their back against the bare brick wall, with a solitary light bulb hanging above. The mood is one of loneliness and despair, with the stark, cold lighting emphasizing the isolation. Could be used in a psychological thriller or a story about prison life.
Waukesha County Jail Visitation | Mail | Phone | Waukesha, WI
A close-up of an inmate's hand, cuffed and restrained, with a barbed wire fence and a chain-link gate in the background. The mood is tense and threatening, with the barbed wire and chain-link adding a sense of danger. Perfect for a crime scene or a story about prison security.
Waukesha County Jail Inmate Roster Lookup, Waukesha, WI
A group of inmates, their faces visible, standing in a line, with a metal table and chairs in the center, and a barbed wire fence in the background. The mood is one of camaraderie and defiance, with the harsh, industrial setting suggesting a place of punishment. Could be used in a prison rebellion or a story about inmate rights.
Waukesha County Jail, WI Visitation Schedule
A solitary inmate walks down a narrow, fluorescent-lit corridor, their footsteps echoing, with a solitary light bulb hanging above. The mood is one of loneliness and confinement, with the stark, industrial setting emphasizing the isolation. Ideal for a psychological thriller or a story about prison life.
(Old) Waukesha County Jail | Waukesha, Wisconsin Completed i… | Flickr
A close-up of an inmate's face, their eyes darting around anxiously, with a barbed wire fence and a chain-link gate in the background. The mood is one of fear and uncertainty, with the barbed wire and chain-link adding a sense of danger. Perfect for a crime scene or a story about prison security.
Waukesha County Jail - June 2023 - YouTube
A group of inmates, their faces obscured by masks, huddled in a common area, with a metal table and chairs in the center, and a barbed wire fence in the background. The mood is one of secrecy and defiance, with the masked faces suggesting a sense of mystery. Could be used in a prison conspiracy or a story about inmate rights.
Waukesha County Jail, WI Visitation Schedule
A solitary inmate sits on a metal chair, their back against the bare brick wall, with a solitary light bulb hanging above, casting long shadows. The mood is one of loneliness and despair, with the stark, cold lighting emphasizing the isolation. Ideal for a psychological thriller or a story about prison life.
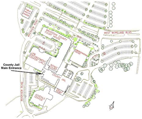
County Jail and Huber Facility Directions | Waukesha County
A close-up of an inmate's hand, cuffed and restrained, with a barbed wire fence and a chain-link gate in the background, the wire glinting in the harsh light. The mood is tense and threatening, with the barbed wire and chain-link adding a sense of danger. Perfect for a crime scene or a story about prison security.
Waukesha County Jail, WI Visitation Schedule
A group of inmates, their faces visible, standing in a line, with a metal gate and a barbed wire fence in the background, the wind rustling the wire. The mood is one of discipline and order, with the harsh, industrial setting suggesting a place of punishment. Useful for a crime scene investigation or a story about prison life.
Waukesha County Jail, WI Visitation Schedule
A solitary inmate walks down a narrow, fluorescent-lit corridor, their footsteps echoing, with a solitary light bulb hanging above, casting long shadows. The mood is one of loneliness and confinement, with the stark, industrial setting emphasizing the isolation. Ideal for a psychological thriller or a story about prison life.
Inmate Dies In Waukesha County Jail: Report | Waukesha, WI Patch
A close-up of an inmate's face, their eyes darting around anxiously, with a barbed wire fence and a chain-link gate in the background, the wire glinting in the harsh light. The mood is one of fear and uncertainty, with the barbed wire and chain-link adding a sense of danger. Perfect for a crime scene or a story about prison security.
Waukesha County Jail Historical Overview WI
A group of inmates, their faces visible, standing in a line, with a metal table and chairs in the center, and a barbed wire fence in the background, the wire glinting in the harsh light. The mood is one of camaraderie and defiance, with the harsh, industrial setting suggesting a place of punishment. Could be used in a prison rebellion or a story about inmate rights.
Coronavirus in Waukesha: Jail inmate tests positive for virus
A solitary inmate sits on a metal chair, their back against the bare brick wall, with a solitary light bulb hanging above, casting long shadows. The mood is one of loneliness and despair, with the stark, cold lighting emphasizing the isolation. Ideal for a psychological thriller or a story about prison life.
Old Waukesha County Jail (Waukesha, Wisconsin) | Built in 18… | Flickr
A close-up of an inmate's hand, cuffed and restrained, with a barbed wire fence and a chain-link gate in the background, the wire glinting in the harsh light. The mood is tense and threatening, with the barbed wire and chain-link adding a sense of danger. Perfect for a crime scene or a story about prison security.
Waukesha Jail Inmate Lookup
A group of inmates, their faces visible, standing in a line, with a metal gate and a barbed wire fence in the background, the wind rustling the wire. The mood is one of discipline and order, with the harsh, industrial setting suggesting a place of punishment. Useful for a crime scene investigation or a story about prison life.
Waukesha County Jail attack; man gets 50+ years in prison | FOX6 Milwaukee
A solitary inmate walks down a narrow, fluorescent-lit corridor, their footsteps echoing, with a solitary light bulb hanging above, casting long shadows. The mood is one of loneliness and confinement, with the stark, industrial setting emphasizing the isolation. Ideal for a psychological thriller or a story about prison life.
Waukesha County Jail Commended For Offering More Religious Texts ...
A close-up of an inmate's face, their eyes darting around anxiously, with a barbed wire fence and a chain-link gate in the background, the wire glinting in the harsh light. The mood is one of fear and uncertainty, with the barbed wire and chain-link adding a sense of danger. Perfect for a crime scene or a story about prison security.
Waukesha County Jail
A group of inmates, their faces visible, standing in a line, with a metal table and chairs in the center, and a barbed wire fence in the background, the wire glinting in the harsh light. The mood is one of camaraderie and defiance, with the harsh, industrial setting suggesting a place of punishment. Could be used in a prison rebellion or a story about inmate rights.
Waukesha County Jail Kitchen Supervisor Charged in Sexual Assaults of ...
A solitary inmate sits on a metal chair, their back against the bare brick wall, with a solitary light bulb hanging above, casting long shadows. The mood is one of loneliness and despair, with the stark, cold lighting emphasizing the isolation. Ideal for a psychological thriller or a story about prison life.
Jail Division | Waukesha County
A close-up of an inmate's hand, cuffed and restrained, with a barbed wire fence and a chain-link gate in the background, the wire glinting in the harsh light. The mood is tense and threatening, with the barbed wire and chain-link adding a sense of danger. Perfect for a crime scene or a story about prison security.
Waukesha County Huber Facility, WI Inmate Roster
A group of inmates, their faces visible, standing in a line, with a metal gate and a barbed wire fence in the background, the wind rustling the wire. The mood is one of discipline and order, with the harsh, industrial setting suggesting a place of punishment. Useful for a crime scene investigation or a story about prison life.
Jail Division | Waukesha County
A solitary inmate walks down a narrow, fluorescent-lit corridor, their footsteps echoing, with a solitary light bulb hanging above, casting long shadows. The mood is one of loneliness and confinement, with the stark, industrial setting emphasizing the isolation. Ideal for a psychological thriller or a story about prison life.
Waukesha County Public Records Search
A close-up of an inmate's face, their eyes darting around anxiously, with a barbed wire fence and a chain-link gate in the background, the wire glinting in the harsh light. The mood is one of fear and uncertainty, with the barbed wire and chain-link adding a sense of danger. Perfect for a crime scene or a story about prison security.
Two people charged in Waukesha County Jail death
A detailed look at waukesha county jail
.
Waukesha County Sheriff's Office Investigating Death In Milwaukee ...
A detailed look at waukesha county jail
.
Image
A detailed look at waukesha county jail
.
About Us | Waukesha County
A detailed look at waukesha county jail
.
How to contact an inmate at Waukesha County Jail - Inmate Help
A detailed look at waukesha county jail
.
Image
A detailed look at waukesha county jail
.
Sex in Waukesha County Jail lobby | FOX6 Milwaukee
A detailed look at waukesha county jail
.
Waukesha County Jail and Huber Facility Inmate List as of ...
A detailed look at waukesha county jail
.
About Us | Waukesha County
A detailed look at waukesha county jail
.
Countyjailvisit.com - County Jail Visitation
A detailed look at waukesha county jail
.
About Us | Waukesha County
A detailed look at waukesha county jail
.
Contractor suffers burns to face working on Waukesha County Jail
A detailed look at waukesha county jail
.
About Us | Waukesha County
A detailed look at waukesha county jail
.
About Us | Waukesha County
A detailed look at waukesha county jail
.