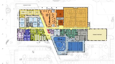
The Wentzville Rec Center is a popular community hub located in the heart of Wentzville, Missouri. It offers a wide range of recreational activities and amenities for all ages, making it a go-to destination for residents and visitors alike. This state-of-the-art facility is designed to promote a healthy and active lifestyle, providing a space for exercise, leisure, and social interaction.
The rec center boasts a variety of features, including a large indoor swimming pool, perfect for swimming laps or enjoying water-based activities. It also has a well-equipped fitness center with modern equipment and classes, catering to those seeking to stay fit or improve their overall health. Additionally, the center offers group exercise classes, such as yoga, Zumba, and spin, providing a fun and social way to stay active.
One of the key benefits of the Wentzville Rec Center is its convenient location, making it easily accessible to the entire community. The facility is open to the public, encouraging residents to engage in regular physical activity and fostering a sense of community well-being.
Wentzville Rec Center - City of WentzvilleCity of Wentzville
Inside the rec center, a group of children play basketball in a spacious, well-lit gym. The image emphasizes the joy and camaraderie of the game, with the children's laughter and the vibrant colors of the court creating a cheerful atmosphere.
Wentzville Rec Center - City of WentzvilleCity of Wentzville
An elderly woman practices yoga in a serene corner of the rec center. The image focuses on the peacefulness of the moment, with soft lighting and a calm background. It highlights the center's inclusivity, catering to all ages and interests.
Wentzville Rec Center (WREC) - City of WentzvilleCity of Wentzville
The rec center's swimming pool area is a hub of activity. People of all ages swim, dive, and play in the water. The image captures the fun and excitement of the scene, with splashes and laughter, creating a sense of community and joy.
Wentzville Rec Center - City of WentzvilleCity of Wentzville
A close-up of a person's face, focused and determined, during a weight training session. The image conveys the intensity and dedication of the workout, with the person's muscles and the equipment in the background, creating a sense of strength and achievement.
Wentzville Rec Center (WREC) - City of WentzvilleCity of Wentzville
A group of teenagers play table tennis in a lively, energetic atmosphere. The image captures the speed and precision of the game, with the ball in mid-air and the players' focused expressions, creating a sense of excitement and competition.
Wentzville Rec Center (WREC) - City of WentzvilleCity of Wentzville
The rec center's fitness class is in full swing, with a group of people following an instructor's lead. The image showcases the variety of exercises and the energy of the participants, creating a sense of community and shared fitness goals.
City of Wentzville opens multi-million-dollar rec center | ksdk.com
A child's artwork is displayed on the wall of the rec center's art studio. The image celebrates creativity and the center's commitment to fostering artistic expression. It adds a touch of color and personality to the space.
Wentzville Rec Center (WREC) - City of WentzvilleCity of Wentzville
The rec center's outdoor track is illuminated by the soft glow of sunset. The image captures the tranquility of the moment, with people running and the warm hues of the sky, creating a peaceful atmosphere for evening workouts.
Wentzville Recreation Center - Counsilman-Hunsaker
A family enjoys a picnic lunch in the rec center's park-like setting. The image emphasizes the center's role in providing a space for community gatherings and outdoor activities, with a sense of relaxation and enjoyment.
Image
A group of people participate in a lively dance class, with the instructor leading the movements. The image captures the fun and energy of the class, with the participants' smiles and the vibrant dance floor, creating a sense of celebration.
Wentzville Rec Center (WREC) - City of WentzvilleCity of Wentzville
The rec center's library is a quiet haven, with people reading and studying. The image showcases the center's commitment to education and knowledge, with a sense of calm and focus, perfect for a quiet afternoon.
Parks & Facilities -City of Wentzville
A person practices martial arts in a controlled, disciplined environment. The image conveys the focus and precision of the martial arts, with the person's movements and the training equipment, creating a sense of skill and control.
Wentzville Recreation Center (WREC) | LindenWell | Lindenwood University
The rec center's community garden is a vibrant, green space. The image highlights the center's commitment to sustainability and community engagement, with people tending to the plants and enjoying the fresh air.
Wentzville Rec Center (WREC) - City of WentzvilleCity of Wentzville
A group of teenagers play video games in a modern, tech-savvy area of the rec center. The image captures the fun and competitive spirit of gaming, with high-tech equipment and the players' focused expressions.
Wentzville Rec Center (WREC) - City of WentzvilleCity of Wentzville
The rec center's rock climbing wall is a challenging, thrilling attraction. The image showcases the physical and mental strength required, with climbers scaling the wall, creating a sense of adventure and accomplishment.
Wentzville Rec Center (WREC) - City of WentzvilleCity of Wentzville
A yoga class is in session, with people finding their inner peace. The image emphasizes the center's focus on wellness and mindfulness, with soft lighting and the calming poses of the participants.
Wentzville Rec Center (WREC) - City of WentzvilleCity of Wentzville
The rec center's ice rink is a winter wonderland, with people skating and enjoying the cold weather. The image captures the joy and speed of the sport, creating a festive atmosphere.
Wentzville Rec Center (WREC) - City of WentzvilleCity of Wentzville
A person practices archery, focusing intently on their target. The image conveys the precision and skill required in archery, with the bow and arrow, creating a sense of concentration and achievement.
Wentzville Rec Center (WREC) - City of WentzvilleCity of Wentzville
The rec center's community hall is decorated for a special event, with a festive atmosphere. The image showcases the center's versatility, hosting various community gatherings and celebrations.
Wentzville Rec Center (WREC) - City of WentzvilleCity of Wentzville
A group of people participate in a cooking class, learning new recipes. The image emphasizes the center's focus on health and nutrition, with the participants' engagement and the delicious-looking dishes.
Wentzville Rec Center (WREC) - City of WentzvilleCity of Wentzville
The rec center's outdoor amphitheater is set up for a concert, with a lively atmosphere. The image captures the energy of live music, with the stage and the excited crowd, creating a sense of celebration.
Wentzville Rec Center (WREC) - City of WentzvilleCity of Wentzville
A person practices calligraphy, creating beautiful, intricate letters. The image showcases the art of calligraphy and the center's commitment to preserving traditional crafts, with a sense of elegance and precision.
Wentzville Rec Center (WREC) - City of WentzvilleCity of Wentzville
The rec center's dance studio is a creative space, with people practicing various dance styles. The image captures the grace and energy of dance, with the participants' movements and the vibrant dance floor.
Living in Wentzville, MO: One of STL's Fastest-Growing Suburbs
A group of people participate in a book club meeting, discussing their favorite novels. The image emphasizes the center's role in fostering intellectual growth and community engagement, with a sense of camaraderie.
Wentzville Rec Center (WREC) - City of WentzvilleCity of Wentzville
The rec center's indoor rock climbing area is a challenging, exciting space. The image showcases the physical and mental strength required, with climbers scaling the wall, creating a sense of adventure and accomplishment.
Wentzville Rec Center (WREC) - City of WentzvilleCity of Wentzville
A person practices tai chi, moving with graceful, fluid motions. The image conveys the calm and focused nature of the practice, with the person's movements and the serene background, creating a sense of tranquility.
Wentzville Rec Center (WREC) - City of WentzvilleCity of Wentzville
The rec center's community garden is a vibrant, green space. The image highlights the center's commitment to sustainability and community engagement, with people tending to the plants and enjoying the fresh air.
Wentzville Rec Center (WREC) - City of WentzvilleCity of Wentzville
A group of teenagers play soccer in a lively, energetic atmosphere. The image captures the speed and precision of the game, with the ball in mid-air and the players' focused expressions, creating a sense of excitement and competition.
I am excited and pleased to announce Wentzville is pleased to share ...
A detailed look at wentzville rec center
.
Wentzville Rec Center (WREC) - City of WentzvilleCity of Wentzville
A detailed look at wentzville rec center
.
Wentzville Rec Center (WREC) - City of WentzvilleCity of Wentzville
A detailed look at wentzville rec center
.
Wentzville Rec Center (WREC) - City of WentzvilleCity of Wentzville
A detailed look at wentzville rec center
.
Wentzville Rec Center (WREC) - City of WentzvilleCity of Wentzville
A detailed look at wentzville rec center
.
Wentzville Rec Center (WREC) - City of WentzvilleCity of Wentzville
A detailed look at wentzville rec center
.
Wentzville Rec Center Door & Office Signs - Engraphix Architectural ...
A detailed look at wentzville rec center
.
Wentzville Rec Center (WREC) - City of WentzvilleCity of Wentzville
A detailed look at wentzville rec center
.
Wentzville Rec Center (WREC) - City of WentzvilleCity of Wentzville
A detailed look at wentzville rec center
.
Wentzville Rec Center (WREC) - City of WentzvilleCity of Wentzville
A detailed look at wentzville rec center
.
Wentzville Rec Center (WREC) - City of WentzvilleCity of Wentzville
A detailed look at wentzville rec center
.
Recreation Center Resident Rates | Lake Saint Louis, MO
A detailed look at wentzville rec center
.
Wentzville Rec Center (WREC) - City of WentzvilleCity of Wentzville
A detailed look at wentzville rec center
.
Wentzville Rec Center (WREC) - City of WentzvilleCity of Wentzville
A detailed look at wentzville rec center
.
Wentzville Rec Center - City of WentzvilleCity of Wentzville
A detailed look at wentzville rec center
.
Wentzville Rec Center Exterior Signs - Engraphix Architectural Signage ...
A detailed look at wentzville rec center
.